-
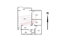
整租|南海明珠|2室2厅|南头
近地铁电梯房民水民电
关注
对比
通过键盘的左右按键也可以切换图片

0/1
南海明珠小区简介
-
更多小区详情 >
-
小区均价54789元/平
年代 1996年
物业类型 普通住宅
经纪人姓名: 证件编号:
营业执照名称:中原地产代理(深圳)有限公司
统一社会信用代码:91440300785254915R
证件号码:91440300785254915R
权限详情
- 读写系统报告
- 允许读写系统设置项
- 拍照权限
- 允许访问摄像头进行拍照
- 使用蓝牙
- 允许程序连接配对过的蓝牙设备
- 蓝牙管理
- 允许程序进行发现和配对新的蓝牙设备
- 修改声音设置
- 修改声音设置信息
更多房评